Villas 78-79
Villas 78-79 are located in the Third District East of El Shorouk City, in a prime residential area that combines tranquility, elegance, and proximity to the city’s main thoroughfares. The villas feature direct views of the Middle Link Road and are adjacent to Al-Hayat Residence Compound, Marbella Mall, and Terrace Mall. They are only a few minutes from the Suez Road and El Shorouk Entrance 2, making them an ideal connection point to various areas inside and outside the city.
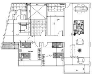
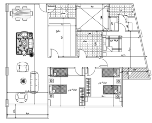
Area & Design
The villas cover a total area of 1,540 sqm and were built in 2024 with a modern design that balances luxury with practical functionality, catering to families seeking spacious and comfortable living.
The villas are designed in a refined style that harmonizes with the peaceful urban environment of the district. Each villa includes a private garage and a storage room, with flexible installment options to facilitate ownership.
The exterior façade features elegant architectural lines and open views that provide a sense of spaciousness and privacy, complemented by high-end finishes that reflect superior craftsmanship and attention to detail.
Nearby Landmarks
The location of the villas offers close proximity to key facilities and services in El Shorouk, making them an excellent choice for those seeking a fully integrated living experience:
Roads: Near the Middle Link Road, connecting Suez Road (via El Shorouk Gate 2) and Shabab Road, extending to Ismailia Road.
Malls: Next to Marbella Mall and Terrace Mall, offering a wide range of shops, restaurants, and daily services.
Mosques: Close to Khatem Al-Mursaleen Mosque and Wadi Al-Rabea Mosque, providing easy access to places of worship.
Property Details
Property Type
Villa
size
1540
Year of Construction
2024
Floors
3
Garage
Available
Storage Room
Available
Installments
Available with a flexible payment plan


