Villa 65, Tabet El Wazir
Villa 65 is located in Taba Al-Wazir within the Third District West of El Shorouk City. It is one of the distinguished residential villas, featuring unique classic façades that combine elegance with privacy.
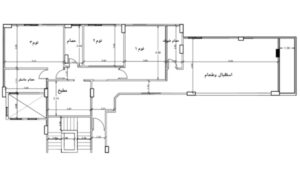
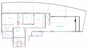
The villa consists of a basement, ground floor, first floor, and roof, all arranged with a well-planned architectural layout that ensures practical comfort on every level.
Location & Amenities
The villa enjoys a strategic location near Al-Waha Road, which leads directly to the First Link Road and the Suez Road. It is also close to Entrance 2 of El Shorouk City, making access to various areas and essential destinations quick and convenient.
Additionally, the villa is located near Panorama Mall and only minutes away from Heliopolis Club and Khairat Al-Rahman Mosque, placing all essential and recreational services within easy reach.
This prime location, combined with its refined design, makes Villa 65 an ideal choice for luxurious living or investment in one of El Shorouk’s most distinguished and fast-growing areas.
Property Details
Property Type
Villa
size
1081
Year of Construction
2025
Garage
Available
Storage Room
Available
Installments
Available with a flexible payment plan







