Villa 101
Villa 101 – Third District East, El Shorouk City
Villa 101 is located in a prime spot in the Third District East of El Shorouk City, offering open views and a design that combines luxury and comfort in one of the quietest and most distinguished residential areas.
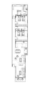
Design and Layout:
The villa is built with a basement, ground floor, first floor, second floor, and rooftop, with a carefully planned layout ensuring maximum privacy, natural ventilation, and excellent lighting.
Architecture and Space:
The villa features elegant classic façades in a light color, giving it a bright and luxurious appearance.
It includes two triplex units (basement + ground + first floor) and two residential units on the second floor, making it ideal for family living or premium real estate investment.
The entrance and staircases are made of the finest marble, with carefully designed Cristal iron gates combining elegance and durability.
Location and Nearby Amenities:
Villa 101 is near the Middle Link Road and just minutes from Suez Road and El Shabab Road, providing easy access to all city areas and nearby key locations.
It is also close to Marbella Mall and just one minute from Terras Mall, with proximity to Al-Sayeda Aisha Mosque, ensuring access to all daily services and entertainment facilities for residents.
Property Details
Property Type
Villa
size
648
Year of Construction
2020
Garage
Available
Storage Room
Available
Installments
Available with a flexible payment plan



